© Sophie Stieger / baubüro in situ

Wohnhäuser Sonneggstrasse, Zürich

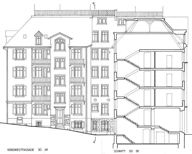
Zu Beginn des 20. Jahrhunderts errichtete die Zürcher Bau- und Wohngenossenschaft am damaligen Stadtrand im Universitätsquartier ihre erste Genossenschaftssiedlung. Die zwei parallel zur Sonneggstrasse stehenden Häuserzeilen mit insgesamt fünf Wohnhäusern fassen bis heute einen gemeinschaftlich genutzten Innenhof. Während die strassenseitige Zeile durch eine hochwertige, bauzeitliche Backsteinfassade mit Veranden und Erkern geprägt ist, zeigt sich die rückseitige Zeile konstruktiv und gestalterisch zurückhaltender. Mit dem hofseitigen Anbau von Balkonen im Jahr 1999 wurde das Ensemble erweitert und gleichzeitig unter Denkmalschutz gestellt. Im Rahmen der Untersuchung wurde die ursprüngliche Trag- und Bausubstanz detailliert dokumentiert und ihr heutiger Zustand bewertet. Ziel war es, die bauzeitliche Struktur als einheitliches Ensemble zu stärken, moderne Anforderungen an Statik, Brandschutz und Wohnkomfort zu erfüllen sowie die bauphysikalischen Eigenschaften zu optimieren, um Energieverluste zu reduzieren. Die erarbeitete Strategie umfasst sowohl kurzfristige Instandsetzungen als auch langfristige Sanierungsschritte, die auf die gesamte Siedlung abgestimmt sind und vom Grundsatz geleitet werden, die denkmalgeschützte Bausubstanz möglichst umfassend zu erhalten.

Ein Schwerpunkt lag auf der Beurteilung der komplexen Dachlandschaften der Häuser 48, 50, 52, 64 und 66. Die Mansardendächer wurden als Rafendächer mit stehenden und liegenden Stühlen erstellt. Unterschiedliche Ausbildungen, Kreuzfirste, Gauben- und Walmausbildungen und eine Stahl-Glaspyramide erzeugen ein vielschichtiges Zusammenspiel konstruktiver und architektonischer Elemente. Trotz zahlreicher Ergänzungen und Umbauten befindet sich das Tragwerk insgesamt in gutem Zustand. Auf Basis der Bestandsanalyse wurden die erforderlichen Massnahmen zur statischen Ertüchtigung definiert. Dazu zählen die Überprüfung und Verbesserung der Längs- und Queraussteifung, die Beurteilung der Zangen- und Kehlbalkenlagen sowie die brandschutztechnische Ertüchtigung der betroffenen Decken. Für Haus 48 wurden zudem die Tragreserven für den Einbau einer zusätzlichen Wohnung nachgewiesen und die notwendigen Anpassungen im Dachtragwerk festgelegt. Diese Massnahmen ermöglichen sowohl die energetische Erneuerung und Neueindeckung der Dächer als auch eine verhältnismässige bauliche Umsetzung der zusätzlichen Wohnnutzung. Mit der erarbeiteten Strategie liegt nun eine fundierte Grundlage für die weitere Planung und Durchführung der Dachsanierungen vor, die sowohl auf den Denkmalschutz abgestimmt ist als auch die heutigen technischen Standards berücksichtigt.

Architektur
Ort
Zürich
Projektierung / Ausführung
2024 - 2027 / 2026 - 2027
Merkmale
Sanierung